Information
物件紹介
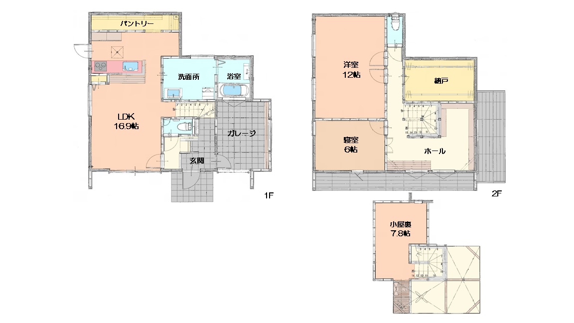
☆ガレージ付きの築浅中古一戸建て!!
☆小屋裏の吹き抜けがオシャレ!!
☆小屋裏の吹き抜けがオシャレ!!
物件担当営業より
◎弊社ではリフォームプランもご相談いただけます!!
様々なお客様のニーズにお応え致します!!
是非、お気軽にご相談下さい!!
様々なお客様のニーズにお応え致します!!
是非、お気軽にご相談下さい!!
所在地
所在地:
日高市上鹿山333-1
Google マップで開く
マップ上の物件位置アイコンは大まかな表示です。実際の位置と異なることがあります。
地図内左下の検索ボックスに住所、施設名を入力して「虫眼鏡マーク」をクリックすると物件までのルートが表示されます。
住宅ローンシュミレーション【元利均等】
ご希望の借入金額や返済期間から、毎月の返済額を計算します。返済額がどのように変わるのかシミュレーションしてみましょう。
*本シミュレーションは借り入れを保証するものではございません。
- 物件 ID 7286
- 金額 3580 万 円
- 間取り 2SLDK
- 物件ステータス 中古戸建
- 築年月 2021年6月
- 建物面積 120.89 m2
- 土地面積 268.23 m2
- ラベル 新着物件, 日当たり良好, 駐車場2台以上
- 交通 JR川越線『高麗川駅』徒歩11分
- 間取り詳細 3LDK可。
- 建物面積(坪数) 36.49
- 土地権利 所有権
- 土地面積(坪数) 81.13
- 地目/地勢 宅地/平坦地
- 建ぺい率/容積率 60%/200%
- 用途地域 第一種住居地域
- 都市計画 市街化区域
- 種別/構造 中古戸建/木造
- 階数 2階建
- 現況 居住中
- 取引態様 仲介
- 引渡時期 相談
お問い合わせ

お名前、電話番号、メールアドレス、ご住所、お問い合わせ・ご相談内容をご入力後、「上記内容を送信する」ボタンを押してください。
内容確認後、弊社担当者より折り返しご案内させていただきます。